Классика 120 м2 №347

Цена строительства от 8 900 000 ₽* * Стоимость не является окончательной
Заявка на консультацию
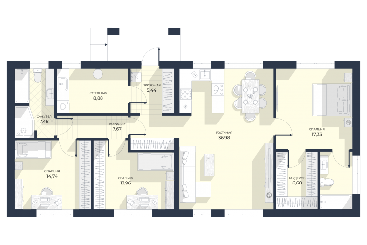
  • Общая площадь 120 м2
  • Длина 18.62 м
  • Ширина 8.22 м
  • Материал стен Кирпич
  • Количество этажей 1
  • Подвал Нет
  • Мансарда без мансарды
  • Гараж Нет
  • Терраса Нет
  • Проживание Круглогодичное
  • Количество комнат 5
  • Количество спален 4
  • Количество санузлов 2
  • Вид проекта дом
  • Застройщик Домология
  • Архитектурный стиль Классический
  • Отделка фасада Штукатурка
  • Крыша Двускатная
  • Можно купить домокомплект Нет
  • Модульный тип строения Нет
Планировки
Описание проекта

Дом для большой семьи, где есть много места для каждого и прекрасное пространство, где можно собраться всем вместе дружной семьей! Продуманная планировка, панорамные окна, 2 сан узла. Возможна планировка с 3 спальнями и шикарной мастер-спальней без изменения площади и цены дома!

Особенности планировки дома

Дом, в котором всё продумано для вашего комфорта. Большой зал, столовая и кухня — именно здесь будут проходить и тихие семейные вечера, и весёлые праздники с гостями! Спальни для личного времени и отдыха!

Срок строительства 12 месяцев

Фундамент

Железобетонный ростверк на сваях глубиной 3 метра, либо железобетонная монолитная плита

Полы

Полусухая стяжка, армированная фиброволокном 
и сеткой

Материал наружных стен

Керамический кирпич полнотелый 250 мм, 
утеплитель ППС 150 мм

Высота потолков от 3 м до 5 м

Фасад Декоративная штукатурка

Внутренняя отделка

Чистовая, известково-песчаная штукатурка стен
по маякам

Кровля

Двускатная, утеплитель минераловатный 250 мм, профилированный лист

Перегородки

Керамический кирпич полнотелый 250/ 120 мм с железобетонными перемычками

Окна

Пластиковые пятикамерные профиль 70 мм

Входная дверь

Металлическая утепленная с терморазрывом и окном

Отопление

Система "Теплый пол", электрический котел, монтаж котельного оборудования

Водоснабжение

Разводка горячей и холодной воды, разводка канализации из пластиковой трубы до точек потребления

Электроснабжение

Сборка и монтаж электрического щита, монтаж эл. счетчика, скрытый монтаж проводки, выводы под розетки и выключатели (по проекту)

Канализация

Установка и подключение септика 5 м3

Коммуникации Входят в стоимость

Выбор местоположения

Задать вопрос / написать нам

E-mail: domgis@mail.ru

Мы свяжемся с Вами в течение дня.

Тех. поддержка
Предмет обращения:
Тукущая страница

Мы свяжемся с Вами в течение дня.

Обратный звонок
Обратный звонок
Выберите ваш город
Пожаловаться

Объявление опубликовано.
Изменения сохранены

Период публикации - бессрочный, при условии подтверждения актуальности каждые 50 дней. Уведомления будут отправляться на Вашу электронную почту.

Выберите причину снятия с публикации

Снятые с публикации объявления не участвуют в поиске и недоступны для подробного просмотра.

Для повторной публикации нажмите «Вернуть в публикацию»